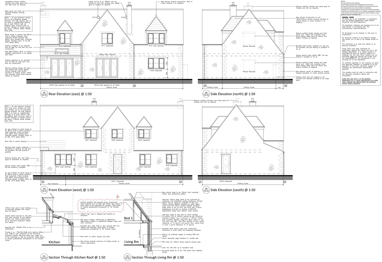
Buildability and technical excellence is sometimes overlooked in architectural design. With our strong technical background in both industry and education this is not the case with Belvoir Architecture.
We are known for robust technical drawings, which are highly detailed and both easy for contractors to understand and work from.
A number of our commissions arrive from contractor referrals who have recommended us to their clients on the basis of our technical excellence.


